Hallo zusammen
Ich bin neu hier im Forum und in Planung, von einem nur bei Gebrauch beheizten Anbau, an unser Haus in dem eine Sauna mit Ruheraum und Dusche Platz finden sollte. Ich möchte nach dem saunieren (wir bevorzugen eher die niedertemperierte Sauna mit höherer Luftfeuchte) die ganze Wärme beim entlüften nicht einfach ins freie blasen.
Daher wäre meine Idee anstelle eines normalen Ventilator eine sogenannte dezentrale Lüftung:
https://www.haustec.de/klima-lueftung/l ... mage-12423
Dazu noch die Frage wer hat welche Erfahrungen mit Tylö Sense Combi Saunaöfen.
Herzlichen Dank für euer Feedback.
Urban
Entlüftung Sauna über Wärmetauscher
- finsterbusch
- Beiträge: 1378
- Registriert: 2. Juli 2007, 14:58
- Wohnort: chemnitz
Re: Entlüftung Sauna über Wärmetauscher
sorry kenne keinen der das schon gemacht hat, auch weil kosten/nutzen,
der tylö sense ist ein qualitativ hochwertiger saunaofen...aber der preis ist schon hoch,
sehr hoch...
der tylö sense ist ein qualitativ hochwertiger saunaofen...aber der preis ist schon hoch,
sehr hoch...
Re: Entlüftung Sauna über Wärmetauscher
Hallo Finsterbusch
Danke für die Antwort, habe es mir auch fast gedacht. Das Problem ist auch, so habe ich bemerkt
, dass die Dinger kaum Hitze vertragen (bis max. 60°)
und die Bio Sauna wird meines Wissens nach beenden immer noch kurz hochgeheizt um das Holz zu trocknen...
Was gibt es für qualitative Alternativen zum Tylö Combi Ofen die man empfehlen kann.
Herzlicher Gruss aus der Schweiz
Urban
Danke für die Antwort, habe es mir auch fast gedacht. Das Problem ist auch, so habe ich bemerkt
und die Bio Sauna wird meines Wissens nach beenden immer noch kurz hochgeheizt um das Holz zu trocknen...
Was gibt es für qualitative Alternativen zum Tylö Combi Ofen die man empfehlen kann.
Herzlicher Gruss aus der Schweiz
Urban
- finsterbusch
- Beiträge: 1378
- Registriert: 2. Juli 2007, 14:58
- Wohnort: chemnitz
Re: Entlüftung Sauna über Wärmetauscher
es gibt für alles alternativen - aber jede sauna und jeder kunde ist halt anders, das ist schwer zu sagen
Re: Entlüftung Sauna über Wärmetauscher
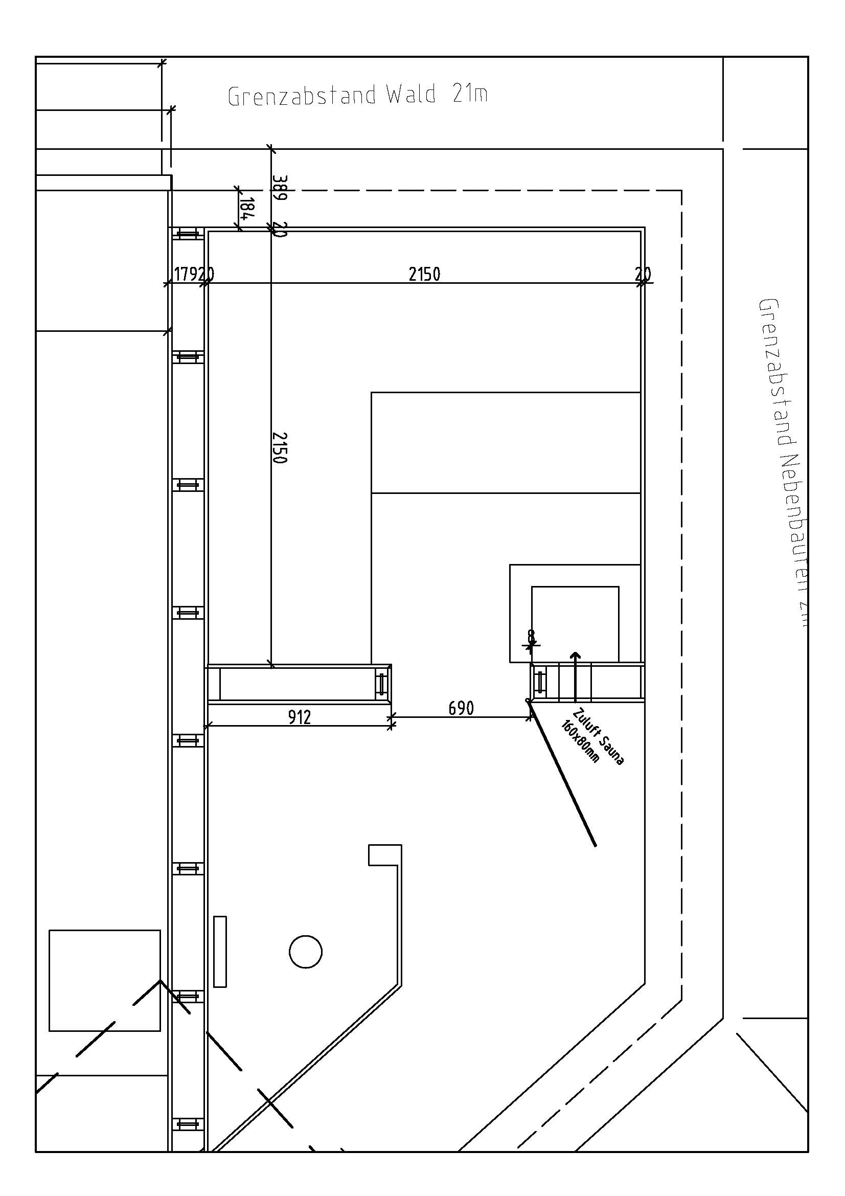
Hallo nochmals, ich bin wieder ein wenig bei der Belüftung unserer Sauna. Dabei bin ich auf folgendes von dem Ofenhersteller Tylö gekommen (siehe jpeg im Anhang). Diese Skizze ist in der Montageanleitung.Nun habe ich aber fast ausschliesslich in Foren und von anderen Herstellern gefunden, dass die Entlüftung nach aussen gehen sollte. Gem. Tylö dass es zu keinen falschen Werten (Temp.) kommt und der Ofen überhizt?
Was meint Ihr dazu? Bei der Finnischen sehe ich da kein Problem, bei einer Bio habe ich aber ein Feuchteproblem...???
Ebenfalls im Anhang noch die Skizze der geplanten Sauna.
Viele Grüsse
Urban
Was meint Ihr dazu? Bei der Finnischen sehe ich da kein Problem, bei einer Bio habe ich aber ein Feuchteproblem...???
Ebenfalls im Anhang noch die Skizze der geplanten Sauna.
Viele Grüsse
Urban
- Dateianhänge
-
- Aussensauna_um.jpg (156.65 KiB) 28835 mal betrachtet
-
- Belueftung_gem_Tylo.jpg (59.02 KiB) 28835 mal betrachtet
- finsterbusch
- Beiträge: 1378
- Registriert: 2. Juli 2007, 14:58
- Wohnort: chemnitz
Re: Entlüftung Sauna über Wärmetauscher
die mehrheit der hersteller empfiehlt ebnen nicht die direkte abluft nach außen.entlüftung über fenster ist besser.