Zuluft - Abluft im Raum oder nach Außen?

Hier der Bereich wo Du technische Fragen stellen kannst und Deine eigene Erfahrungen für die Allgemeinheit veröffentlichen kannst.
Antworten
davyb
Beiträge: 1
Registriert: 2. November 2020, 09:55

Zuluft - Abluft im Raum oder nach Außen?

Beitrag von davyb »

Hallo Zusammen,

wir planen auch unsere Sauna - den Raum dafür haben wir schon vor Jahren geplant (Eigenheim) - und wir haben auch ein festes Fenster vorgesehen, so kann man saunieren mit außen Licht (wenn nicht Nacht ist).
Uns war klar dass wir einen angepasste Sauna brauchen. Wir wollten auch versuchen so viel Platz wie möglich zu nutzen.
Deshalb möchte ich die Sauna aus 45 mm Blockbohlen bauen - ohne Isolierung.
Die Sauna wird zwischen drei Wänden gebaut, davon zwei massive Außenwände aus 36 cm dicken Ziegelsteinen.
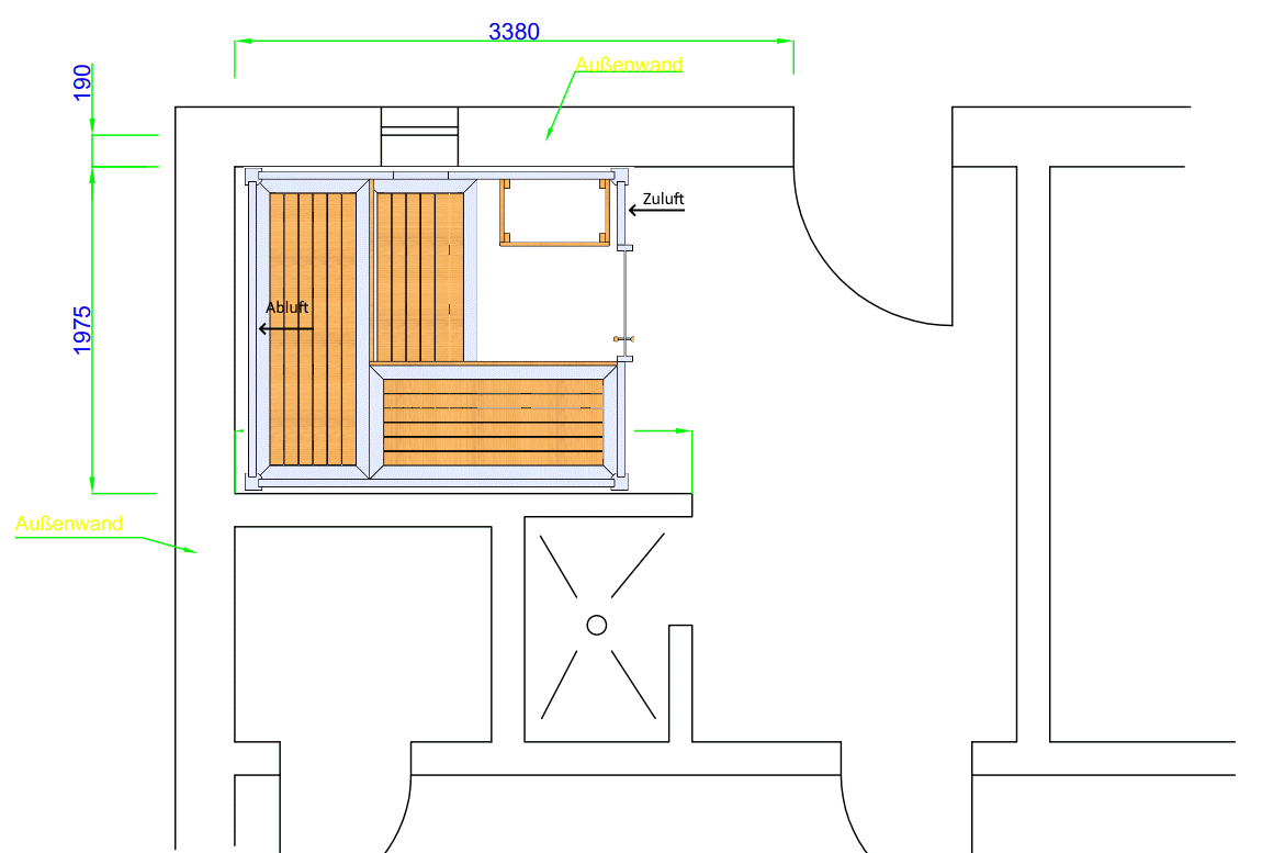
Abmessungen der Sauna B=1,9m T=2,1m H=2,1m (Raum Höhe 2,37m)
Wo ich mich nicht sicher fühle, ist bei der Abluft. Die Abluft ist in der Rückwand der Sauna integriert (zwischen der Saunawand und der außen Wand haben wir mindestens 10 cm geplant - auf die Seite 2 bis 3 cm)

Meine Frage:
Soll ich oder nicht der Abluft nach draussen leiten oder ist es nicht notwendig? Nicht nötig weil der Raum groß genug ist und man kann immer die Terassentür kippen?
Oder kann man einfach der Abluft nach Vorn montieren, links von Sauna Tür?

Ich wäre sehr Dankbar für Ihre Hilfe.
zuluft-abluft.png
zuluft-abluft.png (47.79 KiB) 19300 mal betrachtet
Vielen Dank und Grüße
Davy
Benutzeravatar
finsterbusch
Beiträge: 1378
Registriert: 2. Juli 2007, 14:58
Wohnort: chemnitz

Re: Zuluft - Abluft im Raum oder nach Außen?

Beitrag von finsterbusch »

abluft möglichst in den raum und nicht nach außen...kondensation
danach lüften
Chiller
Beiträge: 6
Registriert: 1. Dezember 2020, 08:08

Re: Zuluft - Abluft im Raum oder nach Außen?

Beitrag von Chiller »

Wie wäre es die Abluft in den Nebenraum zu leiten?
Antworten