Saunabau im Keller

Hier der Bereich wo Du technische Fragen stellen kannst und Deine eigene Erfahrungen für die Allgemeinheit veröffentlichen kannst.
Antworten
Engel0711
Beiträge: 1
Registriert: 3. Dezember 2023, 20:11

Saunabau im Keller

Beitrag von Engel0711 »

Hallo zusammen,

ich lese nun seit einiger Zeit hier im Forum und habe schon vieles mitgenommen, aber ein paar Fragen sind dennoch geblieben und vielleicht habt ihr ja doch noch den ein oder anderen Tipp!

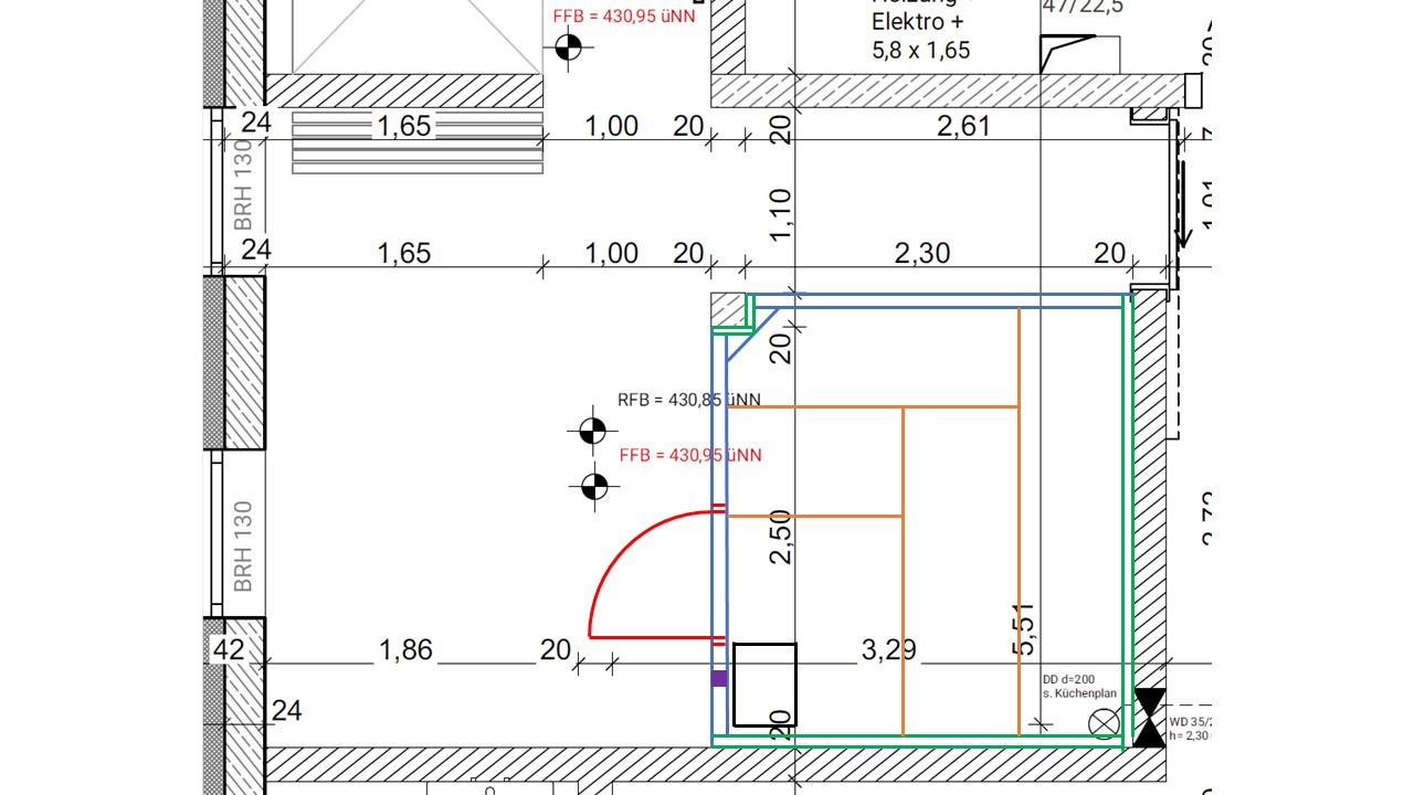
Die Sauna soll im Keller entstehen. Der Kellerraum selbst hat eine lichte Höhe von 2,5m und die Sauna soll wie ihr im Bild sehen könnt die tragende Säule (20x20cm) "umschließen". Damit liegt sie an zwei Innenwänden (Kalksandstein-Steine) an und umschließt besagte Betonsäule. Damit kommen folgende Fragen auf.

Die Sauna selbst umfasst damit einen Raum von 2,5x2,7m. Ich plane mit einer Innenhöhe von 2,15m. Innenmaße der Sauna wären dann je nach Wandaufbau (siehe unten) ca. 2,3x2,5m, Bänke mit ca. 65cm Breite und Höhe 1,05 und 52,5 (je nach Fußboden). Innenlattung aus Thermoespe und um den Ofen herum würde ich gerne Dekosteine vermauern. Ofen Harvia Virta 9kw, Türe 70x190.

1) Blaue Wände (in den Raum hinein): ich würde hier gerne Trockenbauwände in Raumhöhe erstellen: doppelt beplankt (Tendenz OSB+Fermacell außen, da Dusche im Raum), dann Steinwolle 40mm, Alu-Dampfsperre, Hinterlüftung der Saunalatten ca. 23mm und Saunalatten ca. 15mm.
Folgende Fragen: Ist Dämmung und Hinterlüftung richtig dimensioniert?
2) für die grünen Außenwände: Aufbau wie oben ohne Fermacell aber mit Hinterlüftung von 40mm Richtung KS-Wand vs. Sauna-Satu Platten direkt auf die Wand? Oder Hinterlüftung komplett weglassen und OSB Platte (oder was anderes?) direkt an die Wand?
3) Decke: hier würde ich mehr Dämmung verwenden z.B. 60mm, sonst gleiches vorgehen.
4) würdet ihr die gedämmten Trockenbaukonstruktionen immer mit Holz machen, oder machen hier auch Metallprofile Sinn?
5) wie isoliere ich die Säule? Reicht es hier die Alu-Dampfsperre an die Säule zu "kleben", bzw. erst eine Dampfsperre (wie hier: https://www.youtube.com/watch?v=-zI0AnZ ... nel=planeo) gefolgt von der Alufolie zu verwenden? Die Lattung würde ich dann einfach im 45Grad Winkel anbringen.
6) Belüftung: hier bin ich ehrlich gesagt noch etwas verloren. Ich lese immer wieder eine Frischluftzufuhr direkt über dem Ofen ist optimal. Dafür würde man dann aber eine mechanische Lüftung brauchen. Die Abluft würde ich auf jeden Fall in der Ecke "oben rechts" gestalten, sodass diese direkt in den Kellerraum geht. Da ich aber mit den Trockenbauwänden bis zur Decke einen "Raum im Raum" schaffe - brauche ich hier auch nochmal eine Zu- und Abluft mit Lüfter? Ändert sich das je nach Wahl einer Hinterlüftung?

Würde mich sehr zu Meinungen zur Materialwahl, aber auch zum Aufbau freuen. Wenn ihr von irgendetwas abratet, oder Tipps und Tricks habt, alles willkommen. Das wird mein DIY Projekt für 2024 :)

Danke und viele Grüße!
Sauna.jpg
Sauna.jpg (146.4 KiB) 31887 mal betrachtet
Emaked84
Beiträge: 6
Registriert: 30. Oktober 2023, 12:57

Re: Saunabau im Keller

Beitrag von Emaked84 »

Es sieht so aus, als hätten Sie einen umfassenden Plan für Ihre Kellersauna! Ihre Idee, Gipskartonplatten mit einer 40-mm-Mineralwolle-Isolierung und einer Aluminium-Dampfsperre zu verwenden, klingt für blaue Wände sinnvoll. Bei begrünten Außenwänden können Sie entweder die Hinterlüftung belassen oder direkt Sauna-Satu-Paneele verwenden, je nachdem, welche Belüftungsstufe Sie bevorzugen.

Die Verwendung von Holz für isolierte Trockenbaukonstruktionen ist eine gute Wahl, da Holz eine natürliche Isolierung bietet. Zur Säulenisolierung können Sie eine Dampfsperre aus Aluminium verwenden und die Latten in einem 45-Grad-Winkel installieren, um eine Isolierung rund um die Säule zu gewährleisten.

Zur Belüftung können Sie erwägen, über dem Ofen Frischluft einzuführen, dies erfordert jedoch wahrscheinlich eine mechanische Belüftung. Es ist ratsam, professionellen Rat einzuholen, um eine optimale Belüftungsleistung sicherzustellen, insbesondere wenn Sie einen „Raum im Raum“ mit Gipskartonwänden bis zur Decke schaffen.

Sanitärspezialisten kanalreinigung aarau helfen Ihnen gerne bei der Installation der Sauna und geben wertvolle Ratschläge zur Materialauswahl und Gestaltung. Schön, dass du dieses Projekt selbst in Angriff nimmst und wünsche dir viel Erfolg dabei!
Antworten